 |
作品紹介 |
|
| オーダー製作 お気に入り作品紹介 |
 |
|
『 ナ チ ュ ラ ル 化 粧 台 』 の製作依頼
|
今回はAK様よりご依頼の
ナチュラル化粧台
の作品をご紹介します
|
 |
今回 ご紹介させていただく作品は
ご新築でのご使用という
デザインはできるだけシンプルで
ナチュラルな化粧台という ご依頼でした。
ご要望は
天板下に化粧ポーチなどがおける棚がほしい。
また、ニースペースを確保してほしい。
という事で・・・
寸法・デザイン・設置場所などのFAXを
頂き、打ち合わせをさせていただきました。
パイン材 本来の色・素材がそのまま
活かされるナチュラルな仕上がりの
ワトコオイルのホワイト塗装で
仕上げています。 
★ナチュラル化粧台
(寸法:幅90cmх奥行40cmх高さ72cm)
|
|
『 A K 様 イ メ ー ジ 図 』

なかなかここまでは描けませんよね
おみそれしました
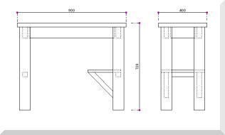
『 製 作 イ メ ー ジ 図 』

『 ナ チ ュ ラ ル 化 粧 台 』

前から見たところ ななめから見たところ
|

横から見たところ 天板・棚板
|
天板
ワトコのホワイト塗装をしているので
木本来の美しさが綺麗に出ています。
|
『 思っていたより全然太くてしっかりした木が
使ってあり本当に満足です。 』と
おほめの言葉をいただき
新居でのお写真を送っていただきました。
 
『 設置して頂いた写真 と 設置予定図 』
『 大切に使っていきたいと思います。 』
と本当に嬉しいお言葉をいただきました。
ありがとうございました。
今後ともよろしくお願いいたします。
|
|
|
 |
 |
|
|

手づくり工房 FootMark
E-mail info@footmark.earth−k.biz |
|
Copyright(c)2006 Foot Mark.All rights reserved このホームページに掲載されている記事・画像・イラストなどの無断転載を禁じます。 |